Dự Toán Chi Phí Xây Nhà 2 Tầng: Hướng Dẫn Toàn Diện

Quyết định xây dựng một ngôi nhà là một hành trình đầy thú vị nhưng cũng không kém phần thách thức, đặc biệt khi bạn đang dự định xây nhà 2 tầng. Để biến ước mơ về tổ ấm thành hiện thực, việc lập kế hoạch tài chính chi tiết và hiểu rõ các khoản mục chi phí là bước khởi đầu vô cùng quan trọng. Bài viết này của Gold Season sẽ cung cấp cái nhìn toàn diện về chi phí xây dựng, giúp bạn chuẩn bị tốt nhất cho công trình tương lai.

Chi Phí Thiết Kế Kiến Trúc và Nội Thất Nhà 2 Tầng

Giai đoạn thiết kế là nền tảng cho bất kỳ công trình nào, định hình không gian sống và phong cách của ngôi nhà. Đối với việc thiết kế nhà 2 tầng, chi phí thường được tính theo mét vuông và phụ thuộc vào độ phức tạp của phong cách cũng như tổng diện tích thiết kế. Chẳng hạn, một số đơn vị cung cấp các gói thiết kế kiến trúc và nội thất với mức giá khác nhau, tùy thuộc vào diện tích và mức độ chi tiết của bản vẽ.

Thông thường, đối với những mẫu nhà phố thông dụng theo phong cách hiện đại hoặc tối giản, chi phí thiết kế kiến trúc có thể dao động từ 130.000 VNĐ đến 160.000 VNĐ mỗi mét vuông cho diện tích từ 200m2 trở lên. Nếu bạn muốn có thêm thiết kế nội thất, mức giá sẽ cộng thêm khoảng 160.000 VNĐ đến 180.000 VNĐ mỗi mét vuông. Với gói thiết kế trọn gói bao gồm cả kiến trúc, nội thất và bản vẽ kết cấu, mức đầu tư có thể từ 290.000 VNĐ đến 340.000 VNĐ mỗi mét vuông. Một số gói nâng cao còn có thể bao gồm dịch vụ dựng video 3D mô phỏng, giúp bạn hình dung rõ nét hơn về mô hình nhà 2 tầng trong tương lai.

Dự Toán Chi Phí Thi Công Xây Thô và Hoàn Thiện Cơ Bản

Phần xây thô nhà 2 tầng cùng với nhân công hoàn thiện là giai đoạn quan trọng nhất, chiếm tỷ trọng lớn trong tổng chi phí. Đây là lúc hình hài của ngôi nhà bắt đầu được định hình với phần móng, khung sườn, tường bao và mái. Chi phí cho hạng mục này cũng được tính theo mét vuông và thường được chia thành các gói tiêu chuẩn, nâng cao và cao cấp để phù hợp với ngân sách và yêu cầu của chủ đầu tư.

Đối với những dự án có diện tích xây dựng từ 300m2 trở lên, mức giá thi công xây thô và nhân công hoàn thiện có thể khởi điểm từ 3.650.000 VNĐ mỗi mét vuông cho gói tiêu chuẩn. Gói nâng cao có thể lên đến 4.050.000 VNĐ mỗi mét vuông, trong khi gói cao cấp đạt khoảng 4.350.000 VNĐ mỗi mét vuông. Đối với các công trình có diện tích dưới 300m2, nhà thầu thường cần khảo sát thực tế để đưa ra báo giá chính xác nhất, do sự khác biệt về quy mô và đặc điểm địa hình.

Thi công xây thô nhà 2 tầngThi công xây thô nhà 2 tầng

Tổng Quan Chi Phí Xây Dựng Nhà 2 Tầng Trọn Gói “Chìa Khóa Trao Tay”

Gói xây dựng nhà 2 tầng trọn gói, hay còn gọi là “chìa khóa trao tay”, là giải pháp toàn diện mà nhiều gia đình lựa chọn bởi sự tiện lợi và tối ưu hóa thời gian. Với gói này, nhà thầu sẽ chịu trách nhiệm từ khâu thiết kế, xin giấy phép, thi công xây thô, đến hoàn thiện nội thất và các hạng mục phụ trợ khác, bàn giao cho chủ nhà một công trình hoàn chỉnh có thể dọn vào ở ngay.

Mức chi phí cho việc xây nhà 2 tầng trọn gói thường cao hơn so với gói xây thô do bao gồm cả vật tư hoàn thiện và chi phí quản lý dự án. Với diện tích xây dựng từ 300m2 trở lên, gói tiêu chuẩn có thể từ 5.950.000 VNĐ mỗi mét vuông, gói nâng cao là 6.350.000 VNĐ và gói cao cấp có thể lên đến 6.650.000 VNĐ mỗi mét vuông. Một số nhà thầu còn có những ưu đãi hấp dẫn như hỗ trợ bản vẽ xin giấy phép xây dựng, miễn phí tư vấn thiết kế, thậm chí là tặng kèm các thiết bị thông minh (smarthome) khi bạn lựa chọn hình thức thi công trọn gói.

Bảng giá chi phí xây dựng nhà 2 tầng trọn gói, giải pháp tiện lợi cho gia đìnhBảng giá chi phí xây dựng nhà 2 tầng trọn gói, giải pháp tiện lợi cho gia đình

Hướng Dẫn Cách Tính Chi Phí Xây Nhà 2 Tầng Chi Tiết

Việc dự toán chi phí xây nhà 2 tầng thường dựa trên công thức cơ bản: Đơn giá nhân với tổng diện tích xây dựng. Tuy nhiên, việc xác định chính xác “tổng diện tích xây dựng” không đơn giản là lấy chiều dài nhân chiều rộng của lô đất. Nó bao gồm cách tính hệ số cho từng phần của công trình như móng, sàn, mái, sân thượng, và các tầng lầu.

Ví Dụ Cụ Thể Về Dự Toán Cho Ngôi Nhà Hai Tầng

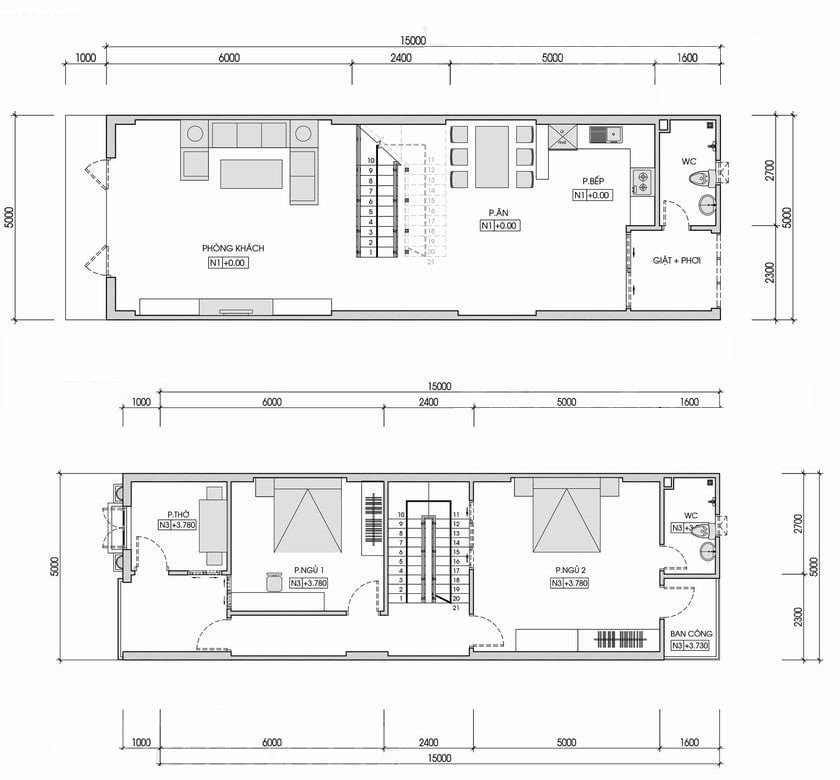
Để dễ hình dung hơn, hãy cùng xem một ví dụ cụ thể về cách tính chi phí cho một ngôi nhà 2 tầng với diện tích lô đất 5x20m, nhưng diện tích xây dựng thực tế là 5x15m (ví dụ, do quy định về chừa khoảng lùi trước và sau khi xin giấy phép xây dựng). Giả sử đây là một công trình móng đơn, quy mô 1 trệt + 1 lầu + sân thượng.

Xem thêm:  Doanh nhân Nguyễn Mạnh Hà: Sự nghiệp là sinh mệnh

Các hạng mục sẽ được tính diện tích như sau:

  • Phần móng đơn thường được tính với hệ số khoảng 40% diện tích sàn tầng trệt, tương đương 30m2 (40% của 75m2).
  • Tầng trệt và tầng 1 mỗi tầng được tính 100% diện tích, tức là 75m2 mỗi tầng.
  • Sân thượng (có kết cấu bê tông cốt thép) có thể được tính với hệ số 50% diện tích, khoảng 37.5m2.
    Tổng diện tích xây dựng quy đổi sẽ là 30 + 75 + 75 + 37.5 = 217.5m2.

Với tổng diện tích xây dựng này, chi phí sẽ được tính tùy theo gói dịch vụ bạn lựa chọn. Nếu chủ nhà chọn gói thi công xây thô và nhân công hoàn thiện (vật tư hoàn thiện do chủ nhà tự cung cấp) với đơn giá 3.650.000 VNĐ/m2, tổng chi phí dự kiến sẽ là 793.875.000 VNĐ. Ngược lại, nếu lựa chọn gói xây dựng trọn gói – chìa khóa trao tay với đơn giá 5.950.000 VNĐ/m2, tổng chi phí sẽ là 1.294.125.000 VNĐ. Từ cách tính này, bạn hoàn toàn có thể tự dự toán chi phí cho các quy cách và diện tích công trình 2 tầng khác nhau.

Sơ đồ mặt bằng công năng nhà 2 tầng 5x15m, giúp dự toán chi phí xây dựngSơ đồ mặt bằng công năng nhà 2 tầng 5x15m, giúp dự toán chi phí xây dựng

Danh Mục Vật Tư Quan Trọng Khi Xây Dựng Nhà 2 Tầng

Chất lượng và chi phí của một công trình 2 tầng phụ thuộc rất lớn vào các loại vật tư được sử dụng. Việc lựa chọn vật liệu không chỉ ảnh hưởng đến độ bền, tính thẩm mỹ mà còn tác động trực tiếp đến ngân sách của bạn. Các nhà thầu thường đưa ra danh mục vật tư theo từng gói xây dựng (tiêu chuẩn, nâng cao, cao cấp) để khách hàng dễ dàng lựa chọn.

Vật Tư Phần Xây Thô: Nền Tảng Chắc Chắn Cho Công Trình

Trong phần xây thô, các vật liệu chính bao gồm thép, xi măng, gạch, đá, cát và bê tông. Đối với thép, các gói tiêu chuẩn có thể sử dụng thép Việt Nhật CB3 hoặc Pomina SD295, trong khi gói cao cấp có thể nâng lên Việt Nhật CB4, Pomina SD390 hoặc Hòa Phát. Xi măng thường là Insee hoặc Hà Tiên. Gạch có thể là gạch Tuynel Bình Dương cho gói tiêu chuẩn, hoặc gạch không nung, gạch Block cho gói cao cấp. Đá Đồng Nai và cát vàng hạt mịn là lựa chọn phổ biến, trong khi bê tông có thể là bê tông thương phẩm đá xám, đôi khi có thêm phụ gia chống thấm B6 cho các gói nâng cao và cao cấp. Các vật tư khác như ống nước cấp thoát, dây điện, cáp truyền hình, internet, ống luồn dây điện cũng được phân loại theo thương hiệu và chất lượng tương ứng với từng gói.

Vật Tư Phần Hoàn Thiện: Tạo Nên Vẻ Đẹp và Tiện Nghi

Phần vật tư hoàn thiện bao gồm gạch ốp lát, sơn, thiết bị vệ sinh, cửa, cầu thang, hệ thống chiếu sáng và các vật liệu trang trí khác. Tùy thuộc vào gói dịch vụ, bạn có thể lựa chọn từ các thương hiệu phổ biến, giá cả phải chăng đến các sản phẩm cao cấp, nhập khẩu. Ví dụ, gạch ốp lát có thể là Đồng Tâm, Taicera cho gói tiêu chuẩn, hoặc các loại đá tự nhiên, gạch nhập khẩu cho gói cao cấp. Sơn nước thường là Dulux, Mykolor hoặc Jotun. Thiết bị vệ sinh từ Inax, Caesar đến Toto. Cửa gỗ công nghiệp, cửa nhôm kính, hoặc cửa gỗ tự nhiên cũng sẽ có mức giá khác nhau. Việc lựa chọn kỹ lưỡng vật tư hoàn thiện sẽ giúp bạn tạo nên không gian sống ưng ý và bền đẹp cho ngôi nhà 2 tầng của mình.

Các Yếu Tố Ảnh Hưởng Đến Tổng Chi Phí Xây Nhà 2 Tầng

Ngoài các chi phí cơ bản về thiết kế và vật tư, nhiều yếu tố khác cũng có thể tác động đáng kể đến tổng mức đầu tư để xây nhà 2 tầng. Việc hiểu rõ những yếu tố này sẽ giúp bạn có cái nhìn toàn diện hơn và đưa ra những quyết định phù hợp trong quá trình xây dựng.

Đầu tiên là vị trí xây dựng. Giá nhân công và vật tư có thể khác nhau đáng kể giữa các vùng miền, đô thị và nông thôn. Các khu vực trung tâm thành phố thường có chi phí cao hơn do giá đất, chi phí vận chuyển và sinh hoạt cao. Tiếp theo là phong cách kiến trúc. Những thiết kế phức tạp, đòi hỏi nhiều chi tiết trang trí, vật liệu đặc biệt hoặc kỹ thuật thi công khó sẽ tốn kém hơn so với những thiết kế nhà 2 tầng đơn giản, hiện đại. Thời điểm xây dựng cũng là một yếu tố, bởi giá vật liệu có thể biến động theo thị trường hoặc thời tiết. Ngoài ra, việc lựa chọn nhà thầu uy tín, có kinh nghiệm cũng ảnh hưởng đến chất lượng và tiến độ, từ đó có thể ảnh hưởng đến chi phí phát sinh nếu không được quản lý tốt.

Lời Khuyên Hữu Ích Để Tối Ưu Chi Phí Xây Nhà 2 Tầng

Để đảm bảo quá trình xây nhà 2 tầng diễn ra suôn sẻ và nằm trong tầm kiểm soát tài chính, bạn có thể áp dụng một số lời khuyên thiết thực. Lập kế hoạch tài chính chi tiết ngay từ đầu là điều cần thiết, bao gồm dự trù các khoản phát sinh bất ngờ, thường chiếm khoảng 10-15% tổng chi phí dự kiến.

Nên đầu tư vào một bản thiết kế chất lượng. Mặc dù có vẻ tốn kém ban đầu, nhưng một bản vẽ kỹ lưỡng sẽ giúp bạn tránh được những sai sót, phát sinh chi phí sửa chữa trong quá trình thi công và tối ưu hóa công năng sử dụng. Cân nhắc kỹ lưỡng việc lựa chọn vật liệu. Không phải lúc nào vật liệu đắt tiền cũng là tốt nhất, hãy tìm kiếm sự cân bằng giữa chất lượng, độ bền và chi phí phù hợp với ngân sách của mình. Hơn nữa, việc tìm kiếm và lựa chọn một nhà thầu uy tín, có kinh nghiệm là chìa khóa để đảm bảo chất lượng công trình và tránh các rủi ro không mong muốn. Đừng ngần ngại tham khảo nhiều báo giá khác nhau và xem xét các dự án mà họ đã thực hiện trước khi đưa ra quyết định cuối cùng.

Quy Trình Xây Dựng Nhà 2 Tầng Cơ Bản

Việc nắm rõ quy trình xây dựng sẽ giúp bạn chủ động hơn trong mọi công đoạn, từ khi lên ý tưởng cho đến khi ngôi nhà 2 tầng hoàn thiện và sẵn sàng để ở. Một quy trình bài bản thường bao gồm nhiều giai đoạn, mỗi giai đoạn đều có những bước thực hiện cụ thể và quan trọng.

Giai Đoạn Chuẩn Bị và Thiết Kế

Đây là bước đầu tiên và quan trọng nhất. Bạn cần xác định rõ nhu cầu, mong muốn về số phòng, phong cách, và ngân sách dự kiến. Sau đó, tiến hành tìm kiếm và làm việc với kiến trúc sư để có bản thiết kế kiến trúc và nội thất chi tiết, đảm bảo phù hợp với phong thủy và quy định xây dựng tại địa phương. Song song với đó là việc chuẩn bị các giấy tờ pháp lý cần thiết như giấy chứng nhận quyền sử dụng đất và đặc biệt là xin giấy phép xây dựng cho công trình 2 tầng. Một bản thiết kế hoàn chỉnh sẽ là kim chỉ nam cho toàn bộ quá trình thi công sau này.

Xem thêm:  Bí quyết xây nhà cấp 4 mái tôn giá rẻ: Tối ưu mọi khoản chi

Giai Đoạn Thi Công và Hoàn Thiện

Sau khi có đầy đủ bản vẽ và giấy phép, giai đoạn thi công sẽ bắt đầu. Nó thường được chia thành thi công phần thô và thi công phần hoàn thiện. Phần thô bao gồm các công việc đào móng, xây dựng kết cấu móng, cột, dầm, sàn, tường và mái. Đây là giai đoạn đòi hỏi sự chính xác cao về kỹ thuật để đảm bảo độ vững chắc cho toàn bộ mô hình nhà 2 tầng. Sau khi phần thô hoàn thành, phần hoàn thiện sẽ bao gồm các hạng mục như trát tường, ốp lát gạch, lắp đặt hệ thống điện nước, sơn bả, lắp đặt cửa, thiết bị vệ sinh, thiết bị chiếu sáng và trang trí nội thất. Việc giám sát chặt chẽ trong từng công đoạn sẽ giúp đảm bảo chất lượng và tiến độ cho dự án.

Sơ đồ quy trình tư vấn thiết kế nhà 2 tầng chi tiết, bước đầu quan trọngSơ đồ quy trình tư vấn thiết kế nhà 2 tầng chi tiết, bước đầu quan trọng

Tham Khảo Các Mẫu Nhà 2 Tầng Hiện Đại

Việc tham khảo các mẫu thiết kế nhà 2 tầng đã hoàn thiện sẽ giúp bạn có thêm ý tưởng và hình dung rõ hơn về ngôi nhà mơ ước của mình. Trên thị trường hiện nay có rất nhiều phong cách kiến trúc đa dạng, từ hiện đại, tối giản đến tân cổ điển, phù hợp với mọi sở thích và điều kiện kinh tế.

Các mẫu nhà phố 2 tầng hiện đại thường chú trọng vào không gian mở, ánh sáng tự nhiên và sự tiện nghi. Với mặt tiền được thiết kế tinh tế, sử dụng vật liệu kính, sắt, hoặc gỗ kết hợp hài hòa, tạo nên vẻ đẹp sang trọng và phóng khoáng. Công năng bên trong được bố trí khoa học, tối ưu hóa diện tích sử dụng, đảm bảo sự thoải mái cho các thành viên trong gia đình. Việc xem xét các hình ảnh thực tế của những dự án nhà 2 tầng đã được xây dựng sẽ là nguồn cảm hứng quý giá, giúp bạn truyền đạt ý tưởng của mình cho kiến trúc sư một cách hiệu quả nhất.

Mẫu thiết kế nhà 2 tầng hiện đại với thiết kế tối giản, tối ưu không gian sốngMẫu thiết kế nhà 2 tầng hiện đại với thiết kế tối giản, tối ưu không gian sống

Mẫu nhà 2 tầng đẹp, hoàn thiện, mang phong cách hiện đại tại khu vực đô thịMẫu nhà 2 tầng đẹp, hoàn thiện, mang phong cách hiện đại tại khu vực đô thị

Xây dựng một ngôi nhà 2 tầng là một quyết định lớn đòi hỏi sự chuẩn bị kỹ lưỡng về mọi mặt, đặc biệt là tài chính. Hy vọng những thông tin chi tiết về chi phí và các yếu tố liên quan do Gold Season cung cấp sẽ giúp bạn có cái nhìn rõ ràng hơn, từ đó tự tin hơn trong hành trình biến ước mơ về tổ ấm thành hiện thực.

Câu Hỏi Thường Gặp (FAQs) Về Xây Nhà 2 Tầng

Chi phí xây nhà 2 tầng trung bình là bao nhiêu?

Chi phí trung bình để xây nhà 2 tầng rất đa dạng, phụ thuộc vào diện tích, vị trí, chất lượng vật tư và gói dịch vụ (xây thô hay trọn gói). Mức giá có thể dao động từ khoảng 3.5 triệu VNĐ/m2 cho xây thô đến hơn 6 triệu VNĐ/m2 cho gói “chìa khóa trao tay”.

Có những loại chi phí nào khi xây nhà 2 tầng?

Các loại chi phí chính bao gồm: chi phí thiết kế kiến trúc và nội thất, chi phí xin giấy phép xây dựng, chi phí thi công phần thô, chi phí vật liệu hoàn thiện, chi phí nhân công, chi phí lắp đặt hệ thống điện nước, và các chi phí phát sinh khác.

Làm sao để tiết kiệm chi phí xây dựng nhà 2 tầng?

Để tiết kiệm chi phí, bạn có thể: lựa chọn phong cách thiết kế đơn giản, tối ưu hóa diện tích sử dụng, tự tìm kiếm và so sánh giá vật liệu, lựa chọn nhà thầu uy tín với báo giá cạnh tranh, và giám sát chặt chẽ quá trình thi công để tránh phát sinh.

Nên chọn gói xây thô hay xây nhà trọn gói?

Việc lựa chọn phụ thuộc vào thời gian và kinh nghiệm của bạn. Gói xây thô phù hợp nếu bạn có thời gian và kiến thức để tự quản lý phần hoàn thiện và mua vật tư. Gói xây nhà trọn gói tiết kiệm thời gian, công sức và thường đảm bảo chất lượng đồng bộ, phù hợp cho người bận rộn.

Cần chuẩn bị những giấy tờ pháp lý gì khi xây nhà 2 tầng?

Các giấy tờ cần thiết bao gồm: giấy chứng nhận quyền sử dụng đất, sổ hộ khẩu, chứng minh thư/căn cước công dân, và đặc biệt là Giấy phép xây dựng do cơ quan có thẩm quyền cấp.

Thời gian thi công một căn nhà 2 tầng mất bao lâu?

Thời gian thi công một ngôi nhà 2 tầng thường kéo dài từ 4 đến 6 tháng, tùy thuộc vào quy mô, độ phức tạp của thiết kế, điều kiện thời tiết và năng lực của nhà thầu.

Làm thế nào để chọn được nhà thầu uy tín cho công trình 2 tầng?

Bạn nên tìm kiếm nhà thầu có kinh nghiệm, uy tín trên thị trường, có hồ sơ năng lực rõ ràng, minh bạch trong báo giá và hợp đồng, cũng như có các dự án thực tế đã hoàn thành để tham khảo.

Vật liệu xây dựng ảnh hưởng thế nào đến giá thành xây nhà 2 tầng?

Vật liệu xây dựng là một trong những yếu tố lớn nhất ảnh hưởng đến giá thành. Vật liệu chất lượng cao, nhập khẩu hoặc có thương hiệu nổi tiếng sẽ làm tăng tổng chi phí, trong khi vật liệu phổ thông hơn có thể giúp tiết kiệm đáng kể.

Có cần thiết phải thuê kiến trúc sư cho nhà 2 tầng không?

Thuê kiến trúc sư là rất cần thiết, ngay cả với mô hình nhà 2 tầng đơn giản. Kiến trúc sư sẽ giúp bạn tối ưu hóa không gian, đảm bảo công năng, tính thẩm mỹ và tuân thủ các quy định xây dựng, tránh lãng phí và sai sót trong quá trình thi công.

Mức giá thiết kế nhà 2 tầng có cố định không?

Giá thiết kế không cố định. Nó phụ thuộc vào diện tích, độ phức tạp của phong cách thiết kế (hiện đại, tân cổ điển, v.v.), uy tín của kiến trúc sư, và gói dịch vụ thiết kế (chỉ kiến trúc, hay bao gồm cả nội thất và cảnh quan).

Bạn đang đọc bài viết Dự Toán Chi Phí Xây Nhà 2 Tầng: Hướng Dẫn Toàn Diện tại chuyên mục Tin tức trên website goldseasonnguyentuan.com.

Avatar of Hà Đăng Sáng
Hà Đăng Sáng

Hà Đăng Sáng 1985 hiện tôi là CEO, tác giả website goldseasonnguyentuan.com. Tôi có hơn 20 năm kinh nghiệm trong lĩnh vực Bất Đông Sản, kiến trúc, phong thủy. Tại đây, tôi luôn cập nhật những nội dung chất lượng đến các bạn đọc.