Chi Phí Xây Nhà 2 Tầng 100m2: Dự Toán Toàn Diện

Việc sở hữu một ngôi nhà mơ ước là mục tiêu của rất nhiều gia đình Việt. Đặc biệt, việc xây dựng một ngôi nhà 2 tầng với diện tích sàn khoảng 100m2 là lựa chọn phổ biến, tối ưu không gian sống cho các gia đình hiện đại. Tuy nhiên, để biến ý tưởng này thành hiện thực, việc lập dự toán chi phí xây nhà 2 tầng 100m2 một cách chi tiết và khoa học là bước vô cùng quan trọng. Một kế hoạch tài chính rõ ràng sẽ giúp bạn chủ động hơn, tránh phát sinh những khoản phí không mong muốn trong suốt quá trình xây dựng.

Các Yếu Tố Ảnh Hưởng Đến Chi Phí Xây Dựng Nhà 2 Tầng 100m2

Để dự toán chính xác chi phí xây nhà 2 tầng 100m2, chúng ta cần xem xét nhiều yếu tố khác nhau. Mỗi yếu tố đều có thể tác động đáng kể đến tổng ngân sách xây dựng, từ khâu thiết kế cho đến khi công trình hoàn thiện và đưa vào sử dụng. Hiểu rõ các yếu tố này sẽ giúp gia chủ đưa ra những quyết định sáng suốt, phù hợp với khả năng tài chính và mong muốn cá nhân.

Quy Mô và Diện Tích Xây Dựng Thực Tế

Khái niệm “nhà 2 tầng 100m2” thường được hiểu là diện tích mặt bằng (footprint) là 100m2 cho mỗi tầng, hoặc tổng diện tích sàn sử dụng. Tuy nhiên, trong xây dựng, chi phí được tính dựa trên tổng diện tích xây dựng quy đổi. Điều này bao gồm cả phần móng, tầng hầm (nếu có), các tầng nổi, sân thượng, mái và các phần diện tích phụ trợ khác. Mỗi hạng mục sẽ có một hệ số tính toán riêng. Ví dụ, phần móng có thể chiếm 30-50% diện tích sàn, sân thượng có mái che là 50%, sân thượng không mái là 25-30%. Một ngôi nhà có diện tích mặt bằng 100m2 có thể có tổng diện tích xây dựng quy đổi lên tới 250-300m2, tùy thuộc vào thiết kế và cấu trúc cụ thể.

Phong Cách Kiến Trúc và Thiết Kế

Lựa chọn phong cách kiến trúc cũng ảnh hưởng trực tiếp đến kinh phí xây nhà 2 tầng. Các thiết kế đơn giản, hiện đại hoặc tối giản thường có chi phí thấp hơn do vật liệu và kỹ thuật thi công không quá phức tạp. Ngược lại, những phong cách cổ điển, tân cổ điển hoặc có nhiều chi tiết trang trí cầu kỳ, đòi hỏi vật liệu cao cấp và tay nghề thợ giỏi, sẽ làm tăng đáng kể tổng chi phí. Chi phí thiết kế kiến trúc và nội thất chuyên nghiệp cũng là một khoản đầu tư xứng đáng để đảm bảo công năng và thẩm mỹ cho ngôi nhà.

Vật Liệu Xây Dựng và Hoàn Thiện

Chất lượng và chủng loại vật liệu xây dựng là một trong những yếu tố quyết định lớn nhất đến chi phí. Từ vật liệu thô như thép, xi măng, gạch, đá, cát cho đến vật liệu hoàn thiện như gạch ốp lát, sơn, thiết bị vệ sinh, hệ thống điện nước, cửa… đều có nhiều mức giá khác nhau. Việc chọn gói vật tư “tiêu chuẩn”, “nâng cao” hay “cao cấp” sẽ tạo ra sự chênh lệch lớn về tổng chi phí xây nhà 2 tầng 100m2. Gia chủ cần cân nhắc kỹ lưỡng giữa ngân sách và chất lượng mong muốn để đưa ra lựa chọn phù hợp.

Địa Điểm và Thời Điểm Thi Công

Vị trí xây dựng ngôi nhà cũng đóng vai trò quan trọng trong việc xác định chi phí. Chi phí vận chuyển vật liệu đến công trình ở các khu vực hẻo lánh, khó tiếp cận thường cao hơn. Giá nhân công ở các thành phố lớn có thể cao hơn so với vùng nông thôn. Ngoài ra, thời điểm thi công cũng cần được tính toán. Xây dựng vào mùa khô ráo thường thuận lợi và nhanh chóng hơn, giúp tiết kiệm thời gian và giảm thiểu rủi ro phát sinh. Xây dựng vào mùa mưa bão có thể kéo dài thời gian thi công, phát sinh chi phí bảo vệ công trình và gián đoạn công việc.

Cách Tính Chi Phí Xây Nhà 2 Tầng 100m2 Cơ Bản

Để có cái nhìn tổng quan về dự toán xây nhà 100m2 2 tầng, bạn có thể áp dụng công thức cơ bản: Tổng chi phí = Đơn giá xây dựng (VNĐ/m2) x Tổng diện tích xây dựng quy đổi (m2). Tuy nhiên, đơn giá này sẽ khác nhau tùy theo gói dịch vụ mà bạn lựa chọn.

Bảng giá xây dựng nhà 2 tầng trọn gói, chi phí xây dựngBảng giá xây dựng nhà 2 tầng trọn gói, chi phí xây dựng

Chi Phí Thiết Kế Kiến Trúc và Nội Thất

Đây là khoản chi phí ban đầu nhưng cực kỳ quan trọng để đảm bảo công trình được thi công đúng kỹ thuật, tối ưu công năng và thẩm mỹ. Chi phí thiết kế thường được tính theo mét vuông diện tích sàn và dao động tùy thuộc vào độ phức tạp của phong cách và yêu cầu riêng của gia chủ. Thông thường, một gói thiết kế kiến trúc thông dụng có thể có đơn giá khoảng 130.000 – 160.000 VNĐ/m2, còn thiết kế nội thất có thể cao hơn, khoảng 160.000 – 180.000 VNĐ/m2. Nếu lựa chọn gói thiết kế trọn gói bao gồm cả kết cấu và kiến trúc nội thất, mức giá sẽ vào khoảng 290.000 – 340.000 VNĐ/m2. Đối với một ngôi nhà có tổng diện tích sàn thiết kế khoảng 200m2, chi phí thiết kế có thể từ 58 triệu đến 68 triệu đồng.

Xem thêm:  Bà Nguyễn Đức Thạch Diễm Chuyển Vai Trò Tại Sacombank

Chi Phí Xây Thô và Nhân Công Hoàn Thiện

Gói thi công xây thô bao gồm toàn bộ phần khung nhà (móng, dầm, sàn, cột, tường bao, mái), cùng với nhân công để hoàn thiện các hạng mục cơ bản (ốp lát, sơn bả, lắp đặt thiết bị điện nước). Vật tư cho phần hoàn thiện sẽ do chủ nhà tự cung cấp. Đơn giá cho gói này thường dao động từ 3.650.000 VNĐ/m2 đến 4.350.000 VNĐ/m2, tùy thuộc vào tiêu chuẩn vật tư và mức độ phức tạp của công trình. Đây là lựa chọn phổ biến cho những gia chủ muốn tự mình kiểm soát và lựa chọn vật liệu hoàn thiện theo sở thích cá nhân.

Thi công xây thô nhà phố, quá trình xây dựngThi công xây thô nhà phố, quá trình xây dựng

Chi Phí Xây Dựng Trọn Gói “Chìa Khóa Trao Tay”

Dịch vụ xây dựng trọn gói, hay còn gọi là “chìa khóa trao tay”, là lựa chọn tiện lợi nhất cho gia chủ, khi nhà thầu sẽ lo liệu từ khâu thiết kế, xin phép xây dựng cho đến thi công, hoàn thiện và bàn giao nhà. Gói này bao gồm cả vật tư thô và vật tư hoàn thiện. Đơn giá cho gói xây nhà trọn gói 2 tầng thường dao động từ 5.950.000 VNĐ/m2 đến 6.650.000 VNĐ/m2, tùy thuộc vào chất lượng vật tư (tiêu chuẩn, nâng cao, cao cấp) và quy mô dự án. Lựa chọn gói này giúp tiết kiệm thời gian, công sức và hạn chế tối đa các chi phí phát sinh bất ngờ.

Dự Toán Chi Tiết Cho Ngôi Nhà 2 Tầng 100m2

Để minh họa cụ thể hơn về chi phí xây dựng nhà 2 tầng 100m2, chúng ta sẽ xét một ví dụ thực tế. Giả sử ngôi nhà có diện tích mặt bằng (footprint) là 100m2, bao gồm 1 trệt, 1 lầu và sân thượng. Công trình sử dụng móng đơn và diện tích sân thượng là 50% diện tích sàn.

Cách tính diện tích xây dựng quy đổi:

  • Phần móng đơn: 40% x 100m2 = 40m2
  • Tầng trệt: 100% x 100m2 = 100m2
  • Tầng 1: 100% x 100m2 = 100m2
  • Sân thượng (có mái che hoặc BTCT): 50% x 100m2 = 50m2
  • Tổng diện tích xây dựng quy đổi: 40 + 100 + 100 + 50 = 290m2

Tổng chi phí xây nhà 2 tầng 100m2:

  1. Nếu chọn gói thi công xây thô & nhân công hoàn thiện (vật tư hoàn thiện chủ nhà cung cấp):

    • Giả sử đơn giá trung bình là 3.800.000 VNĐ/m2.
    • Tổng thành tiền = 290m2 x 3.800.000 VNĐ/m2 = 1.102.000.000 VNĐ.
  2. Nếu chọn gói xây dựng trọn gói “Chìa khóa trao tay”:

    • Giả sử đơn giá trung bình là 6.100.000 VNĐ/m2.
    • Tổng thành tiền = 290m2 x 6.100.000 VNĐ/m2 = 1.769.000.000 VNĐ.

Các con số này chỉ mang tính chất tham khảo và có thể thay đổi tùy thuộc vào biến động thị trường vật liệu, đơn giá nhân công tại từng thời điểm và khu vực cụ thể.

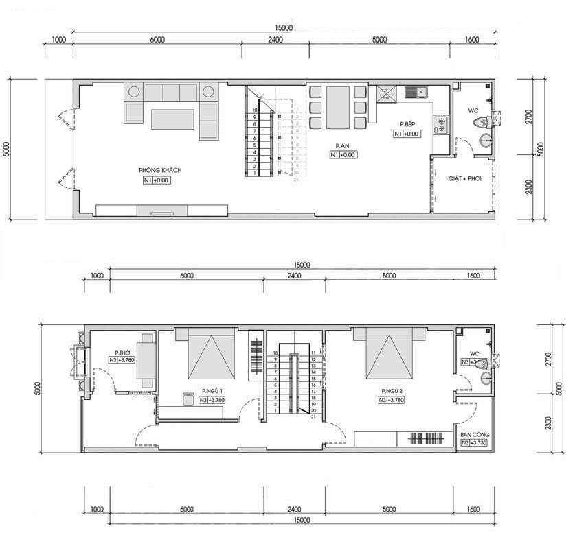
Mặt bằng công năng nhà 2 tầng 100m2, bố trí khoa họcMặt bằng công năng nhà 2 tầng 100m2, bố trí khoa học

Danh Mục Vật Tư Xây Dựng Cho Nhà 2 Tầng

Việc lựa chọn vật tư xây dựng là một quyết định quan trọng, ảnh hưởng trực tiếp đến chất lượng, độ bền và thẩm mỹ của ngôi nhà, đồng thời cũng là yếu tố chính cấu thành nên tổng vốn xây nhà 2 tầng. Gia chủ cần nắm rõ các danh mục vật tư để có thể kiểm soát chất lượng và ngân sách hiệu quả.

Vật Tư Phần Xây Thô Quan Trọng

Phần thô là nền tảng của ngôi nhà, bao gồm các cấu kiện chịu lực chính và phần bao che. Các vật tư quan trọng trong giai đoạn này gồm có:

  • Thép: Thường sử dụng các thương hiệu uy tín như Việt Nhật, Pomina, Hòa Phát, với các mác thép CB3, SD295, CB4, SD390 tùy theo yêu cầu kỹ thuật và gói xây dựng.
  • Xi măng: Các loại xi măng phổ biến như Insee, Hà Tiên được dùng cho công tác bê tông và vữa xây tô.
  • Gạch: Gạch Tuynel Bình Dương, Đồng Nai hoặc gạch không nung, gạch Block là những lựa chọn tùy thuộc vào tiêu chuẩn và quy định địa phương.
  • Đá và Cát: Đá Đồng Nai, đá xanh Hóa An cho bê tông; cát vàng hạt mịn hoặc cát vàng đờ mi cho vữa xây, trát.
  • Bê tông: Bê tông thương phẩm đá xám hoặc bê tông Lê Phan, có thể bổ sung phụ gia chống thấm B6 cho các khu vực đặc biệt.
  • Hệ thống điện nước: Ống nước cấp và thoát của Bình Minh, Vesbo; dây điện Cadivi; cáp truyền hình, điện thoại của MPE, Sino; cáp internet AMP Cat5e hoặc Cat6A.
  • Vật liệu chống thấm: Các loại hóa chất chống thấm như KOVO – CT11A, SIKA LATEX, SIKATOP SEAL 107, MASTERSEAL 540 được dùng cho các vị trí ẩm ướt như nhà vệ sinh, sân thượng.
  • Ngói, Tole: Ngói Đồng Tâm hoặc Tole Hoa Sen, Đông Á cho phần mái.

Vật Tư Phần Hoàn Thiện Cần Thiết

Phần hoàn thiện là bước cuối cùng để biến công trình thô trở thành một không gian sống hoàn chỉnh và tiện nghi. Các vật tư trong giai đoạn này sẽ quyết định vẻ đẹp và phong cách nội thất của ngôi nhà.

  • Gạch ốp lát: Bao gồm gạch lát nền, gạch ốp tường cho các khu vực như phòng khách, phòng ngủ, nhà bếp, nhà vệ sinh. Có rất nhiều thương hiệu và mẫu mã từ Viglacera, Đồng Tâm đến các loại gạch nhập khẩu cao cấp.
  • Sơn nước: Sơn ngoại thất và nội thất từ các thương hiệu như Dulux, Mykolor, Jotun, Kova, với đa dạng màu sắc và tính năng (chống thấm, chống nấm mốc, dễ lau chùi).
  • Hệ thống cửa: Cửa chính, cửa phòng, cửa sổ có thể làm từ gỗ tự nhiên, gỗ công nghiệp, nhôm kính (Xingfa, Việt Pháp), hoặc vật liệu uPVC.
  • Thiết bị vệ sinh: Bồn cầu, lavabo, vòi sen, bình nóng lạnh từ các hãng Inax, ToTo, Viglacera, Caesar, American Standard.
  • Hệ thống chiếu sáng: Đèn LED, đèn trang trí, công tắc, ổ cắm từ Sino, Panasonic, Roman.
  • Trần nhà: Trần thạch cao (chống ẩm, chống cháy), trần nhựa, trần gỗ hoặc trần la phông.
  • Tủ bếp: Gỗ tự nhiên, gỗ công nghiệp, acrylic, laminate.
  • Thiết bị điện gia dụng: Máy lạnh, quạt trần, bếp từ, máy hút mùi… (Thường do gia chủ tự mua sắm, nhưng cần lên kế hoạch lắp đặt đường điện, nước phù hợp).
Xem thêm:  Thông tin dự án Khu công nghiệp Yên Bình 2

Mẫu thiết kế nhà phố hiện đại 2 tầng, kiến trúc nhà đẹpMẫu thiết kế nhà phố hiện đại 2 tầng, kiến trúc nhà đẹp

Kinh Nghiệm Quản Lý Ngân Sách Xây Dựng Hiệu Quả

Để tối ưu chi phí xây nhà 2 tầng 100m2 và tránh những phát sinh không đáng có, việc quản lý ngân sách một cách khoa học là điều cần thiết. Một kế hoạch tài chính cụ thể sẽ giúp bạn kiểm soát dòng tiền, đưa ra các quyết định thông minh trong suốt quá trình xây dựng ngôi nhà mơ ước.

Trước tiên, hãy lập một bảng dự toán chi tiết với tất cả các hạng mục chi tiêu, từ khâu xin phép xây dựng, thiết kế, vật liệu thô, nhân công, vật liệu hoàn thiện đến các chi phí dự phòng. Việc tham khảo nhiều báo giá từ các nhà thầu uy tín là rất quan trọng để có cái nhìn tổng quan về đơn giá xây dựng nhà 2 tầng trên thị trường. Đừng ngần ngại đàm phán để có được mức giá tốt nhất, nhưng cũng không nên chạy theo giá rẻ mà bỏ qua chất lượng.

Chọn lựa nhà thầu có kinh nghiệm và uy tín là yếu tố then chốt. Một nhà thầu chuyên nghiệp sẽ giúp bạn tối ưu thiết kế, tư vấn vật liệu phù hợp và quản lý công trình hiệu quả, từ đó giảm thiểu rủi ro phát sinh chi phí. Hơn nữa, việc giám sát chặt chẽ tiến độ và chất lượng thi công cũng là trách nhiệm của gia chủ để đảm bảo mọi việc diễn ra đúng theo kế hoạch và hợp đồng. Luôn giữ một khoản chi phí dự phòng (khoảng 10-15% tổng chi phí dự kiến) để đối phó với những tình huống bất ngờ hoặc những thay đổi nhỏ trong quá trình thi công.

Câu Hỏi Thường Gặp Về Chi Phí Xây Nhà 2 Tầng 100m2

1. Chi phí xây nhà 2 tầng 100m2 khoảng bao nhiêu?

Tổng chi phí xây nhà 2 tầng với diện tích sàn khoảng 100m2 (tổng diện tích xây dựng quy đổi khoảng 250-300m2) có thể dao động từ 1.1 tỷ đến 1.8 tỷ VNĐ cho gói xây thô và nhân công hoàn thiện, hoặc từ 1.8 tỷ đến 2.5 tỷ VNĐ cho gói xây dựng trọn gói, tùy thuộc vào chất lượng vật tư, phong cách thiết kế và địa điểm thi công.

2. Làm thế nào để tiết kiệm chi phí xây nhà 2 tầng 100m2?

Để tiết kiệm chi phí, bạn nên lựa chọn phong cách kiến trúc đơn giản, hiện đại; ưu tiên vật liệu xây dựng phổ biến, có giá thành hợp lý nhưng vẫn đảm bảo chất lượng; tìm kiếm nhà thầu uy tín với báo giá cạnh tranh; và lập kế hoạch tài chính chi tiết ngay từ đầu để tránh phát sinh.

3. Chi phí thiết kế kiến trúc có bắt buộc không?

Chi phí thiết kế không bắt buộc về mặt pháp lý (trừ khi yêu cầu xin giấy phép xây dựng), nhưng rất cần thiết để đảm bảo công trình được thi công đúng kỹ thuật, tối ưu công năng, thẩm mỹ và hạn chế sai sót trong quá trình xây dựng. Đầu tư vào thiết kế tốt giúp tránh lãng phí vật liệu và sửa chữa tốn kém sau này.

4. Gói xây dựng “chìa khóa trao tay” có những ưu điểm gì?

Gói “chìa khóa trao tay” giúp gia chủ tiết kiệm thời gian và công sức quản lý dự án, đảm bảo tiến độ thi công, chất lượng vật liệu và ít phát sinh chi phí ngoài dự kiến. Nhà thầu sẽ chịu trách nhiệm toàn bộ từ thiết kế đến hoàn thiện và bàn giao nhà.

5. Yếu tố nào ảnh hưởng nhiều nhất đến tổng chi phí xây nhà?

Vật liệu xây dựng và chi phí nhân công là hai yếu tố ảnh hưởng lớn nhất đến tổng chi phí. Việc lựa chọn vật liệu cao cấp hay bình dân, cùng với trình độ tay nghề của đội ngũ thợ, sẽ tạo ra sự chênh lệch đáng kể trong ngân sách.

6. Có nên thuê giám sát riêng cho công trình không?

Việc thuê giám sát riêng là rất nên làm, đặc biệt nếu bạn không có kinh nghiệm về xây dựng. Giám sát độc lập sẽ giúp kiểm tra chất lượng thi công, vật tư, tiến độ và đảm bảo nhà thầu thực hiện đúng hợp đồng, bảo vệ quyền lợi của gia chủ.

7. Thời gian xây dựng một ngôi nhà 2 tầng 100m2 thường là bao lâu?

Thông thường, thời gian xây dựng một ngôi nhà 2 tầng 100m2 (từ khâu móng đến hoàn thiện) dao động khoảng 4-6 tháng, tùy thuộc vào quy mô, độ phức tạp của thiết kế, điều kiện thời tiết và năng lực của đội ngũ thi công.

8. Chi phí xin giấy phép xây dựng là bao nhiêu?

Chi phí xin giấy phép xây dựng thường không lớn, nhưng có thể bao gồm các khoản phí hành chính, phí thẩm định hồ sơ, và phí dịch vụ nếu bạn thuê đơn vị tư vấn. Khoản này dao động vài triệu đồng tùy địa phương và độ phức tạp của hồ sơ.

Xây dựng một tổ ấm là một hành trình quan trọng đòi hỏi sự chuẩn bị kỹ lưỡng về tài chính và kiến thức. Với những thông tin chi tiết về chi phí xây nhà 2 tầng 100m2 được chia sẻ từ Gold Season, hy vọng bạn đã có cái nhìn rõ ràng hơn để lập kế hoạch cho ngôi nhà mơ ước của mình. Việc nghiên cứu kỹ lưỡng, dự toán chính xác và lựa chọn đối tác uy tín sẽ là chìa khóa để bạn sở hữu một không gian sống hoàn hảo, bền vững và phù hợp với ngân sách đã đặt ra.

Bạn đang đọc bài viết Chi Phí Xây Nhà 2 Tầng 100m2: Dự Toán Toàn Diện tại chuyên mục Tin tức trên website goldseasonnguyentuan.com.

Avatar of Hà Đăng Sáng
Hà Đăng Sáng

Hà Đăng Sáng 1985 hiện tôi là CEO, tác giả website goldseasonnguyentuan.com. Tôi có hơn 20 năm kinh nghiệm trong lĩnh vực Bất Đông Sản, kiến trúc, phong thủy. Tại đây, tôi luôn cập nhật những nội dung chất lượng đến các bạn đọc.